
Contact us
Calumet Street Christian Church
2240 East Calumet Street
Centralia, Illinois 62801
618-533-4421
Find your way here
Centralia is nearly right in the center of the southern half of Illinois, at the intersection of U.S. 51 and Illinois 161. It is 9 miles west of Interstate 57 exit 109, and 10 miles north of Interstate 64 exit 61.
CSCC is located at the corner of East Calumet Street and Airport Road in Centralia.
- From U.S. 51 (Elm Street one-way north or Poplar Street one-way south in Centralia) turn east on Calumet Street. Follow Calumet Street to Airport Road and CSCC.
- From Illinois 161 (Noleman Street one-way east or McCord Street one-way west in Centralia) turn south on Airport Road. Follow Airport Road to Calumet Street and CSCC.
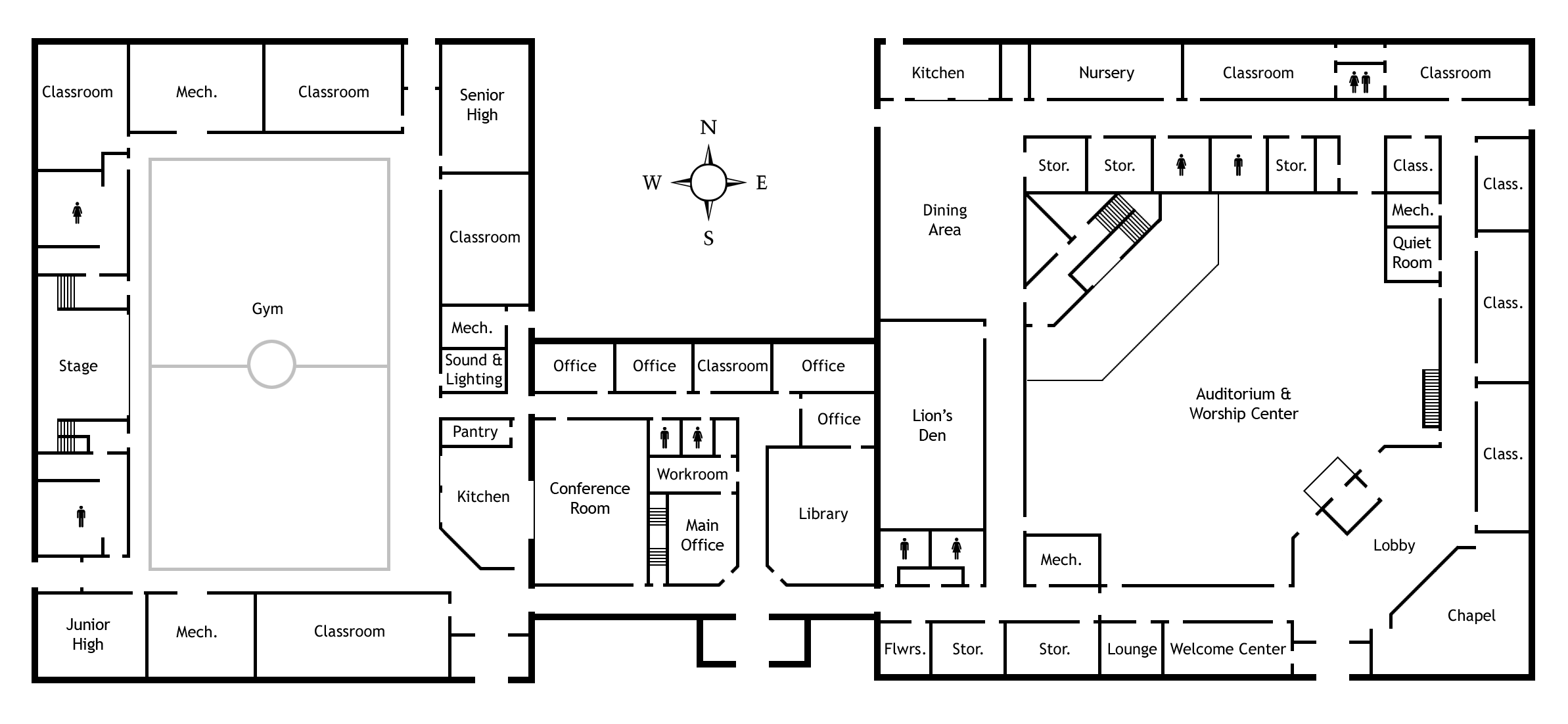
Find your way around
On the east side of CSCC are the Auditorium, Welcome Center, Chapel, and children's classrooms and Nursery. The Gym is on the west side, along with student and adult classrooms. In between are the church offices, the Library, and the Conference Room.
Anywhere on our site that you see a pushpin icon like this
next to the name of a room, you can click it to quickly see where that room is in the building.
Please note that side and rear doors are locked during worship hours, so you must enter at the front (south side) of the building. During the week all doors normally remain locked, and you can "buzz" for entry at the Main Office using the box to the left of the doors.
Meet our staff

Anthony Sweeney
Preaching Minister

Ian Maphet
Worship Minister

Scott Goodson
Student Minister

Angie Blair
Admin Assistant

Joe Hawkins
Custodian


